不動産を探す
売りたい
リフォームする
来店する
新規会員登録・ログイン
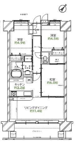
不動産詳細Property Detail
価格:2,500万円
総額:0万円(税込)
※上記支払例の借入条件:金利0.700%、 借入総額2,500万円、借入期間35年
頭金0円 / ボーナス払い0円
月々:円
※上記支払例の借入条件:金利0.700%、 借入総額万円、借入期間35年
総額:0.0万円(税込)※各部位のチェックを外すと支払金額が変わります。
※学校区は住所から自動判定したものであり、保証できる情報ではございません。正確な学校区はお問い合わせ下さい。
お問い合わせフォームはこちら
※地図上の「対象地」は「千葉県市原市八幡996-13」の場所を指しています。実際の場所ではない場合がございます。詳しくはお問い合わせください。
現在790件ご紹介可能!
売主様のご要望で一般には公開していない 「非公開不動産」を会員様だけに限定公開しています。